2025年12月 環境包装設計事例の紹介と解説
木製スキット 紙化検討

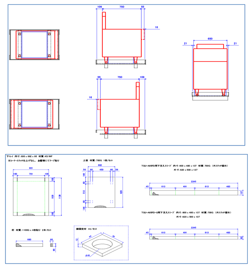
今回は、木製スキットの紙化の事例を紹介します。
現在は、木製スキットにて出荷しているが、客先での廃棄の問題があり、紙化したいという要望がありました。
製品に重量が重いということで、ハイプルを使用した仕様を提案しました。顧客側の評価もよく、仕様が決まったと思いましたが、キャップに印刷を入れたいという追加要望があり、1回の数量はあまり出ないという
ことから、キャップを段ボールに変更し、ハイプルのパットを貼り、強度を保とうということになりました。
また、リフトで製品を持ち上げる際にキャップが反らないように、製品の下にスリーブをセットすることで、製品ごと段パレを持ち上げることができるようにしました。
現在、サンプルを提出し、評価待ちです。